1620 MCLEAN DRIVE

Vancouver

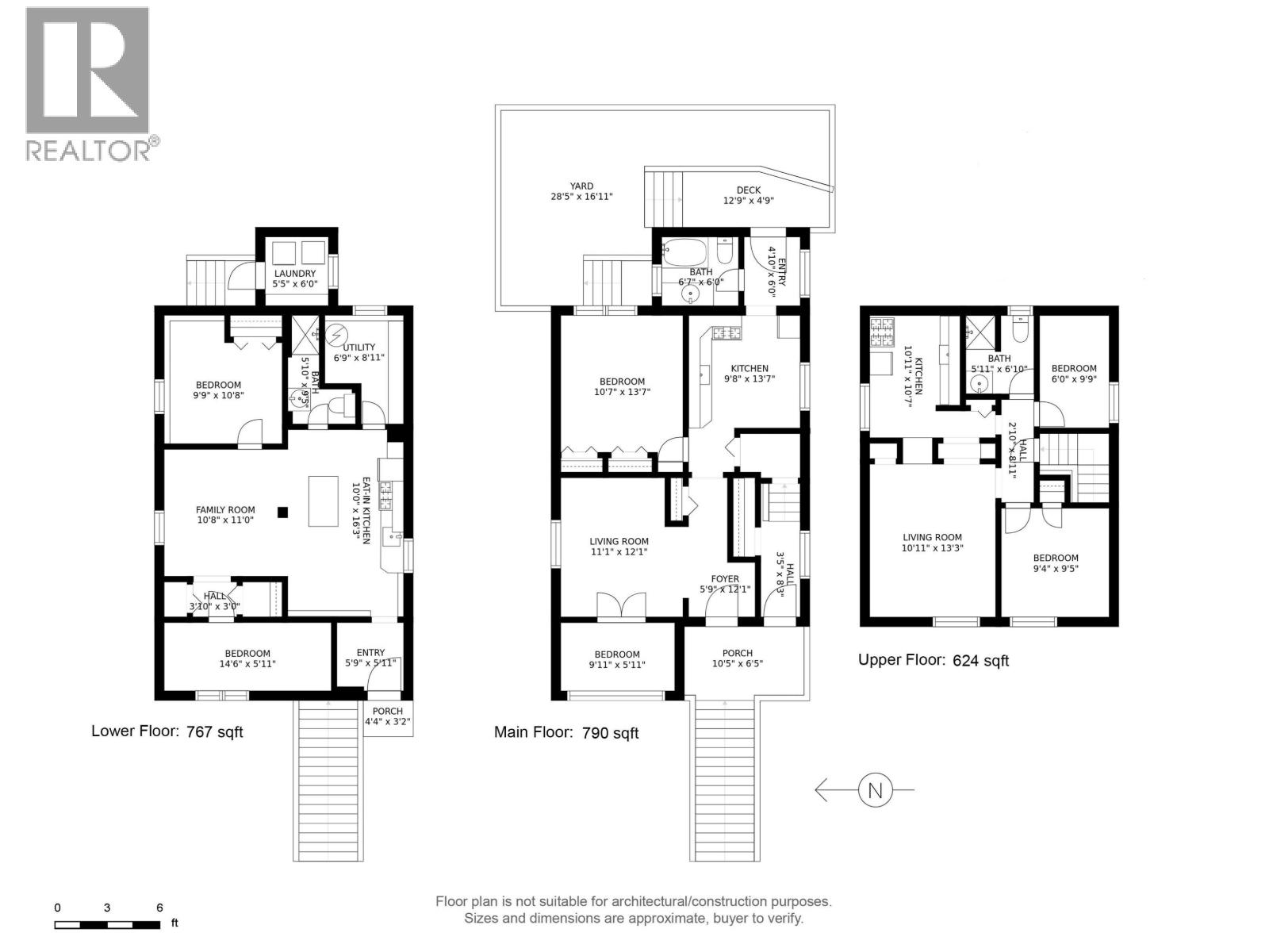
Price $1,584,000
Year Built 1912
Property Type House
Bedrooms 6
Bathrooms 3
Living Area 2181
Login to Save

Fantastic opportunity to own, live, and earn at 1620 Mclean Drive in Grandview-Woodland (Commercial Drive). This heritage-style character home is fully renovated with modern finishes and three self-contained 2-bedroom suites-perfect for Airbnb or long-term rental income. Exceptional investment potential. Upgrades include new furnace (Nov 2025), new insulation, custom insulated windows, quartz countertops, new cabinetry, flooring, and fresh paint (2022). Private laundry, fully fenced backyard, and secure gated entry. Walk to cafés, shops, transit, SkyTrain, and East Van parks. SHOWING: Sat Feb 28, 2:45 - 3:00pm (id:58403)

Listing Brokerage: Oakwyn Realty Ltd.

Map of 1620 MCLEAN DRIVE, Vancouver, British Columbia, Canada

1620 Mclean Drive, Vancouver

Listing ID: R3090814
Share this Listing
By using our site, you agree to our Privacy Policy and Terms of Use.
For Sale For Rent For Presale Portfolio Agents Offices Join Culture Podcast Articles Press Shop Log In Agent Login