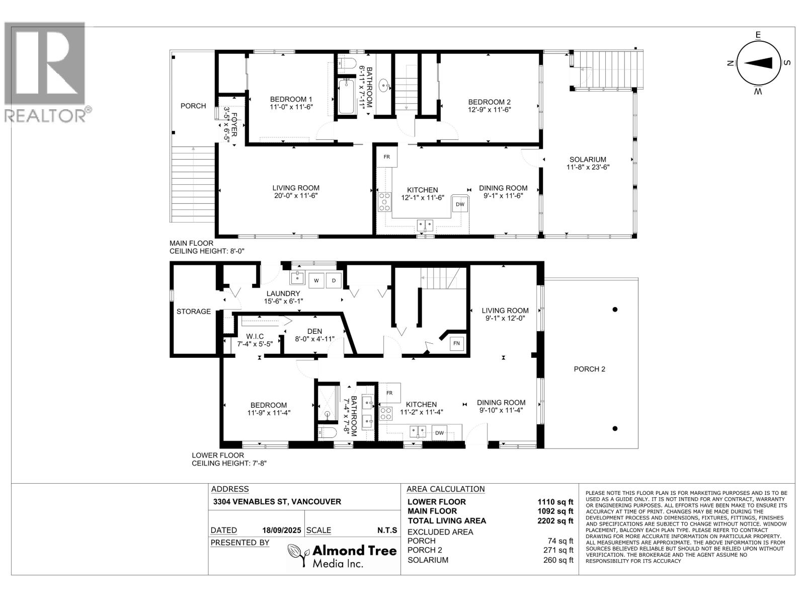
3304 VENABLES STREET

Vancouver

Price $1,750,000
Year Built 1954
Property Type House
Bedrooms 3
Bathrooms 2
Living Area 2202
Login to Save

Beautiful CORNER LOT 2 level home in prime RENFREW area of East Van!! Lots of natural light!! The main floor features original oak floors with 2 bedrooms and an updated bathroom. There is a 260sf enclosed SOLARIUM on the main floor (not included in floor area) for your entertaining!! The lower level has an above ground completely redone self-contained 1 bedroom and den suite mortgage helper (was a 2 bedroom suite and can be easily converted back). BRAND NEW ROOF, updated furnace and hot water tank, double glazed vinyl windows. The exterior has a covered 271sf ground level patio, is fully fenced, storage area and RV parking!! Walk to BUS STOP right outside!! Rupert Skytrain, shopping, schools, community centers, golfing, playground and trails are all within walking distance of this home!! (id:58403)

Listing Brokerage: Oakwyn Realty Ltd.

Map of 3304 VENABLES STREET, Vancouver, British Columbia, Canada

3304 Venables Street, Vancouver

Listing ID: R3050256
Share this Listing
By using our site, you agree to our Privacy Policy and Terms of Use.
For Sale For Rent For Presale Portfolio Agents Offices Join Culture Podcast Articles Press Shop Log In Agent Login