5989 FREMLIN STREET

Vancouver

Price $3,449,900
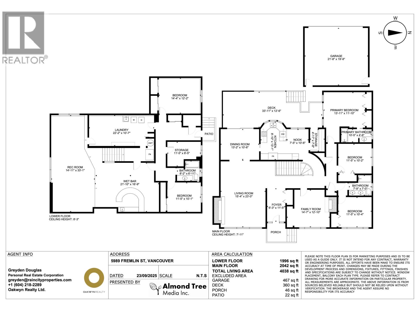
Year Built 1962
Property Type House
Bedrooms 5
Bathrooms 3
Living Area 4038
Login to Save

Discover the untapped potential at 5989 Fremlin Street in Vancouver's vibrant Oakridge neighborhood! This charming 3,805 sq ft, 5-bed, 2.5-bath single-family home sits on a spacious lot, blending classic appeal with modern opportunity. Nestled near Oakridge Centre, transit, and green spaces, it's perfect for families or investors. Under the groundbreaking new R1-1 Zoning designation (effective 2025), redevelop into a multiplex masterpiece! Unlock up to 3-8 units on this lot, enabling ground-oriented multi-family housing while preserving neighborhood character. Ideal for savvy developers eyeing Vancouver's housing boom-boost density, value, and returns without the old RS restrictions. (id:58403)

Listing Brokerage: Oakwyn Realty Ltd.

Map of 5989 FREMLIN STREET, Vancouver, British Columbia, Canada

5989 Fremlin Street, Vancouver

Listing ID: R3051187
Share this Listing
By using our site, you agree to our Privacy Policy and Terms of Use.
For Sale For Rent For Presale Portfolio Agents Offices Join Culture Podcast Articles Press Shop Log In Agent Login